Válvula Euro 25
Também conhecida como registro, é utilizada em canalizações que transportem água bruta ou tratada, sob pressão, à temperatura ambiente ou que não exceda 60°C. A Válvula de Gaveta com Bolsas e Cunha de Borracha para Tubos de Ferro Fundido Dúctil e PVC DEFoFo - Euro 25, é fabricada em ferro fundido dúctil, conforme norma NBR 14968 e está disponível do DN 80 ao 300.
Revestimento Externo:
Tinta epóxi padrão RAL 5005.
Tinta epóxi padrão RAL 5005.
-
FTSG 0088 - VÁLVULA GAVETA EURO 25 PVC DE FOFO
DOWNLOAD

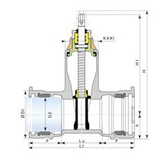
| DN | DE | Lt | Lu | P | D1 | H1 | H | h | K x K1 | Nº de Voltas para Fechar | Massa |
|---|---|---|---|---|---|---|---|---|---|---|---|
| mm | mm | mm | mm | mm | mm | mm | Kg | ||||
| 80 | 98 | 298 | 128 | 85 | 141 | 289 | 369 | 78 | 105 x 174 | 17,0 | 15,0 |
| 100 | 118 | 317 | 141 | 88 | 161 | 336 | 427 | 88 | 11 x 194 | 23 | 19 |
| 150 | 170 | 351 | 163 | 94 | 212 | 421 | 540 | 115 | 136 x 257 | 32 | 34 |
| 200 | 222 | 387 | 170 | 100 | 294 | 510 | 665 | 145 | 182 x 352 | 35 | 65 |
| 250 | 274 | 428 | 218 | 105 | 351 | 618 | 785 | 171 | 195 x 430 | 44 | 95 |
| 300 | 326 | 458 | 215 | 110 | 371,7 | 696 | 958 | 205 | 214 x 488 | 53 | 136 |