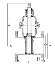
Válvula Gaveta GTW Cunha Emborrachada Corpo Curto
A válvula de gaveta que, na engenharia sanitária, é geralmente chamada de registro é utilizada em canalizações que transportam água bruta tratada ou esgoto gradeado, sob pressão, à temperatura ambiente ou que não exceda 50°C. Esta válvula destina-se ao bloqueio, não sendo recomendada para regulagem ou estrangulamento. A válvula é adequada para uso em sistemas de água potável e serviços enterrados.
-
VÁLVULA GAVETA GTW CUNHA EMBORRACHADA CORPO CURTO
DOWNLOAD
