Comporta Quadrada
Fabricada em ferro fundido dúctil e conforme norma AWWA C-501, a Comporta Sentido Duplo de Fluxo, é utilizada para descarga horizontal, em canais de concreto, de instalações hidráulicas sob pressão atmosférica, como: reservatórios decantadores, câmaras de mistura, filtros abertos, pequenas barragens etc. É também especialmente recomendada para instalações de esgoto.
Revestimento Externo:
Pintura Epóxi Azul
Pintura Epóxi Azul
-
FTSG 0049 - Comporta DN 200 a 2500.v1
DOWNLOAD

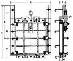
| DN | A | B | C | D | E | ØF | G | H | Massa |
|---|---|---|---|---|---|---|---|---|---|
| mm | mm | mm | mm | mm | pol. | mm | mm | Kg | |
| 200 | 324 | 170 | 219,1 | 395 | 565 | 11/8 | 75 | 37 | 100 |
| 300 | 520 | 250 | 386 | 500 | 750 | 11/8 | 110 | 55 | 150 |
| 400 | 620 | 300 | 525 | 578,5 | 878,5 | 11/8 | 110 | 55 | 195 |
| 500 | 728 | 354 | 508 | 649 | 1003 | 11/8 | 115 | 60 | 280 |
| 600 | 828 | 404 | 600 | 798,5 | 1202,5 | 13/4 | 127 | 60 | 350 |
| 700 | 1022 | 496 | 686 | 812 | 1308 | 13/4 | 144 | 70 | 550 |
| 800 | 1144 | 546 | 720 | 944 | 1490 | 13/4 | 172 | 86 | 810 |
| 900 | 1244 | 596 | 770 | 1094 | 1690 | 2 | 191 | 86 | 1050 |
| 1000 | 1354 | 636 | 817,3 | 1099,5 | 1735,5 | 2 | 191 | 86 | 1154 |
| 1200 | 1554 | 736 | 876 | 1299 | 2035 | 21/2 | 196 | 86 | 1535 |
| 1400 | 1754 | 836 | 988 | 1501 | 2337 | 21/2 | 196 | 86 | 2150 |
| 1500 | 1854 | 886 | 1040 | 1602 | 2488 | 21/2 | 196 | 86 | 2530 |
| 1800 | 2220 | 1083 | 1270 | 1927,8 | 3010,8 | 25/8 | 233 | 100 | 3750 |
| 2500 | 2990 | 1435 | 1784 | 2657,5 | 4092,5 | 31/2 | 268 | 120 | 6360 |