Válvulas

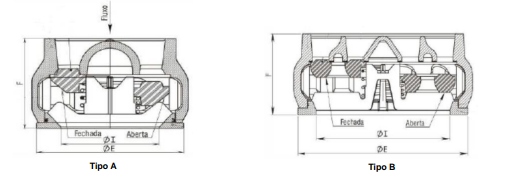
Válvula de Retenção Fechamento Rápido Wafer ou Flangeada



Redes de abastecimento e distribuição de água tratada, sistemas de captação de água bruta ou sistema de transporte líquidos de processos.

  • FTSG 0404 - VÁLVULA RETENÇÃO FECHAMENTO RÁPIDO WAFER

    DOWNLOAD
  • FTSG 0405 - VÁLVULA RETENÇÃO FECHAMENTO RÁPIDO FLANGEADA

    DOWNLOAD


Voltar